Rönnstigen
Rönnstigen, Hudiksvall
jakobsberg kristineberg

Rönnstigen
8500 kr
per månad
Fakta
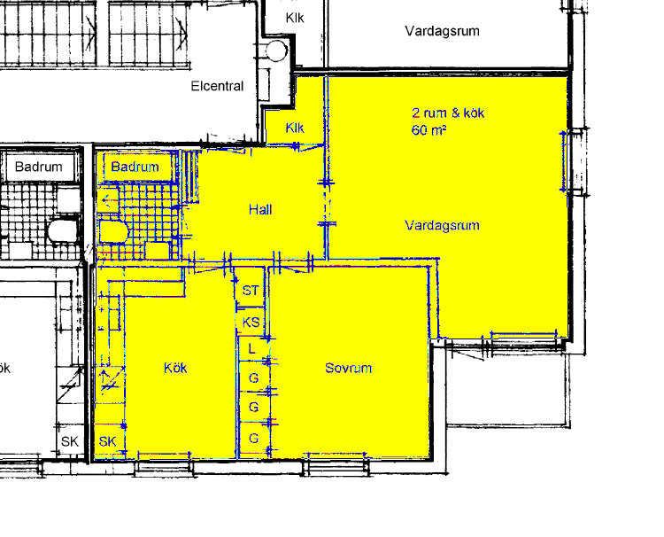
Typ
Lägenhet
Rum
2 rum
Yta
60 m²
Hyra
8500 kr/mån
Publicerad
7 feb. 2026
Källa
qasa.se
Beskrivning
Möblerad lägenhet i centrala Hudiksvall på 4:e våningen i ett lugnt område. Nära sjukhuset och motionsslinga. Balkong med vacker utsikt över Hudiksvall, fjärden och skogen. Tillgång till tvättstuga grannhusets bottenplan, diskmaskin finns i lägenheten. Bredband, wi-fi och carport ingår i hyran. Lägenheten är möblerad med en 120 cm säng men det finns plats för ytterligare en enkelsäng om hyresgästen vill ställa in en sådan. Det har bott en hund i lägenheten och den är inte allergisanerad. Uthyres till dig som är icke rökare, utan husdjur och har goda referenser. 30 april till 30 september. Viss flexibilitet gällande datum för in och utflyttning. Vi skickar gärna bilder vid förfrågan.
Letar du efter fler bostäder i Hudiksvall?
På Bofrid hittar du lägenheter, hus och rum att hyra i Hudiksvall och hela Gävleborgs län — samlat på ett ställe.
Hitta bostad i Hudiksvall på Bofrid